深谷駅から徒歩9分!高台角地の好立地!倉庫付き事務所です。
深谷市上野台倉庫付き貸事務所
|
|
| 所在地 | 埼玉県深谷市上野台290番地6 深谷市上野台倉庫付き貸事務所 |
|---|---|
| 交通 | JR高崎線 深谷駅 徒歩9分 |
| 築年月 | 1995/03 | 新築/中古 | |
|---|---|---|---|
| 面積 | 89.77m² | 計測方式 | |
| バルコニー | 向き | ||
| 建物階数 | 地上2階 | 部屋階数 | |
| 建物構造 | 鉄骨造 | ||
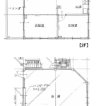
| 間取内容 |
|
||
| 住宅保険料 | 要 2年 | ||
| 駐車場 | 敷地内3台無料 | 取引態様 | 一般 |
| 引渡/入居時期 | 即時 | 現況 | 空家 |
| 地目 | 宅地 | 用途地域 | 第一種住居地域 |
| 都市計画 | 市街化区域 | 地勢 | 平坦 |
| 土地面積 | 117.02m² | 土地面積計測方式 | 公簿 |
| 建ぺい率 | 60% | 容積率 | 160% |
| 土地権利 | 接道状況 | 三方 | |
| 接道方向1 | 西 | 接道間口1 | 7m |
| 接道種別1 | 公道 | 接道幅員1 | 4m |
| 接道方向2 | 北 | 接道間口2 | 9m |
| 接道種別2 | 公道 | 接道幅員2 | 4m |
| 周辺環境 |
深谷市立桜ヶ丘小学校 深谷市立南中学校 |
||
| 設備・条件 | |||
| 物件番号 | 10003 | ||
| 自社物 | 自社物 | 状態 | 空有 |
Loading...
※物件掲載内容と現況に相違がある場合は現況を優先と致します。
問合せ先
株式会社ステムハウス
〒369-0306埼玉県児玉郡上里町七本木42528-2
TEL. 0495-40-9153
宅建免許番号:埼玉県知事(1)第25349号










